De Zuidflank van Rheden wordt stukken aantrekkelijker

07 sep 2018, 9:30Nieuws
zuidflank rheden
gemeente Rheden
RHEDEN - Het college van burgemeester en wethouders stelt de gemeenteraad voor geld beschikbaar te stellen voor het verbeteren van de Zuidflank in Rheden.
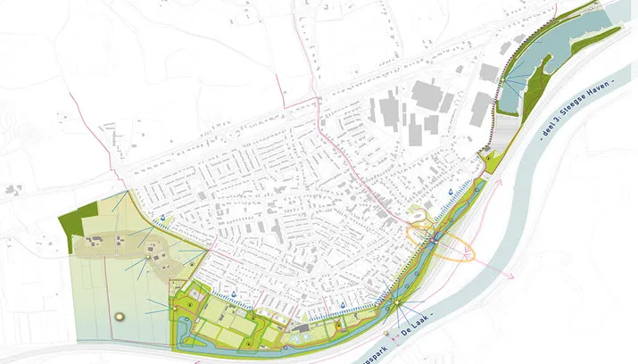
Het geld wordt gebruikt om het gebied dat loopt van Worth-Rheden tot en met het begin van de Steegse Haven aantrekkelijker te maken. De gemeenteraad neemt in november, tijdens de begrotingsbehandeling, een besluit hierover.
Voor 2019 en 2020 staan onder andere de volgende projecten gepland in de Zuidflank. In totaal gaat het om een investering van ruim 2 miljoen euro.
  • Een recreatief wandelpad van ruim 3 km door het gebied; een mooi ommetje voor het hele dorp.
  • Een uitkijktoren om de relatie tussen het dorp, het groen, het water (De Laak en de IJssel) en de uiterwaarden aan de zuidzijde van de A348 te versterken (zoals het 50 jaar geleden was voor de aanleg van de A348).
  • Het verbeteren van de entree van Rheden bij het kruispunt Laakweg/Oranjeweg/ IJsselsingel.
  • Een verbinding maken met het agrarisch gebied in Worth Rheden door de aanleg van paden. Zo ontstaat er een mooie verbinding met het landelijk gebied en de Veluwe.
  • Opknappen van de parkeervoorziening tussen de kinderboerderij en de voetbalvereniging, het realiseren van een mooie toegang tot het park daar en een natuurspeelplaats. Bij de uitwerking van deze plannen kijken we ook of hier een ijsbaan kan komen.
  • Haalbaarheidsonderzoek naar een transferium; parkeergelegenheid voor bezoekers van het dorp en de Posbank.

Wensen uit het dorp

Bij het opstellen van de Structuurvisie voor het dorp Rheden in 2014 gaven inwoners aan dat er meer kan met dit groene en waterrijke gebied; maak het aantrekkelijker, toegankelijker en maak beter gebruik van de huidige functies.
Tijdens een pop-up café konden inwoners, ondernemers, eigenaren en verenigingen hun wensen aangeven voor de Zuidflank. Alle eerdergenoemde plannen zijn uitwerkingen van deze wensen.

Wethouder Ronald Haverkamp:

“Het is mooi om te zien hoe de wensen vanuit het dorp Rheden nu daadwerkelijk invulling krijgen in dit gebied. De Zuidflank wordt zo aantrekkelijker voor de inwoners maar ook voor de toeristen. En daarvan profiteren ook weer de ondernemers. Samen met alle partijen gaan we er iets moois van maken”.

Lees ook:

loading

Loading articles...

Loading