
VELP - Veel mensen zullen de Wiardi Hoeve aan de Ringallee in Velp kennen als voormalig koetshuis en manege. Op dit moment wordt er volop gewerkt in en rond het gebouw aan het realiseren van een zorgresidence voor ouderen met een zorgindicatie uit de Wet Langdurige Zorg, denk aan mensen met dementie, geheugenproblemen of fysieke aandoeningen.
Het pand heeft aan de buitenzijde een monumentale status, aan de binnenzijde zijn er een aantal authentieke elementen die behouden moeten worden, zoals de voederbakken met daarboven de oude tegels in de stallen.
(Tekst gaat verder onder de foto)

Met veel respect voor de historie van het pand en de authentieke elementen worden er 10 appartementen gerealiseerd in de Wiardi Hoeve. De stal wordt een gezamenlijke ruimte met daarin een gezellig leef keuken. Ook is er gelegenheid om onder andere de krant te lezen, activiteiten te beoefenen, televisie te kijken en muziek te luisteren. Dit alles onder het genot van een hapje en drankje.
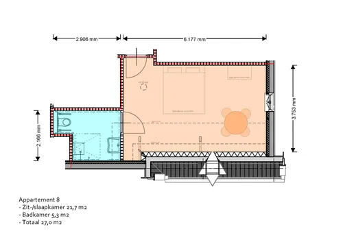
Er komen 6 appartementen voor alleenstaanden en 4 voor echtparen. Ook is er een vrijstaande studio voor palliatief terminale zorg. Alle appartementen zijn voorzien van eigen badkamer en toilet. Er is een lift aanwezig om toegang te krijgen tot de appartementen op de eerste verdieping.
Op dit moment wordt er intensief en vakkundig verbouwd. Initiatiefnemers Esther en Linda kijken uit naar de ontwikkelingen en uiteindelijke oplevering. Helaas heeft Covid-19 ervoor gezorgd dat er vertraging is op levering van de bouwmaterialen. Dit betekent dat de geplande oplevering eind 2021 nu een aantal maanden vertraagd is. Op 1 maart 2022 opent de Wiardi Hoeve haar deuren en zal de Wiardi Hoeve vanaf dat moment een prachtige locatie zijn om te verblijven.
(Tekst gaat verder onder de foto)

"Wat gaat het mooi worden! Wij kijken uit naar de opbouw van de Wiardi Hoeve maar vooral naar bewoners die straks met luxe, gemak, zorgzaamheid, veiligheid en liefde de laatste jaren van hun leven kunnen wonen".
Esther en Linda werken volgens de 10 klantbeloften van ‘Kwaliteit@’. Een erkende kwaliteitsmethodiek en een nadere uitwerking van het Kwaliteitskader Verpleeghuiszorg. Het is belangrijk dat mensen zich thuis voelen in de Wiardi Hoeve waarbij het voeren van eigen regie door bewoners en de nadruk op welzijn en kwaliteiten van leven speerpunten zijn.
Ook is binnen de Wiardi Hoeve tijdelijk verblijf en logeren mogelijk. Denkt u hierbij aan een situatie waarin overbelaste mantelzorgers die een periode van rust nodig hebben of een vakantie willen plannen. De partner of het familielid krijgt dan tijdelijk zorg in een veilige en beschermde omgeving.
(Tekst gaat verder onder de foto)

Mensen die graag in de Wiardi Hoeve willen wonen, kunnen zich nu al aanmelden voor de interesselijst via de website: https://wiardihoeve.nl . De Wiardi Hoeve is een particuliere setting. Dit wil zeggen dat huur en zorg gescheiden zijn. Het huren van een appartement dient door toekomstige bewoners zelf bekostigd te worden. Zorg wordt vergoed vanuit de indicatie Wet Langdurige Zorg. Uw casemanager dementie of wijkverpleegkundige kan zo nodig ondersteuning bieden bij het aanvragen van deze benodigde indicatie.
De enthousiaste en betrokken initiatiefneemsters zijn altijd bereikbaar voor eventuele vragen via telefoonnummer 06-53587045. Zij komen graag bij u thuis om extra informatie te verstrekken.
Ontwikkelingen rondom de Zorgrésidence zijn te volgens via de Facebookpagina en website www.wiardihoeve.nl
. Zorgrésidence de Wiardi Hoeve, Ringallee 37a, 6881 MX Velp. https://wiardihoeve.nl/contact/ , [email protected] .





